Webseite www.webdesigner-profi.de

Прочитай статью

Скільки потрібно розеток в дитячу кімнату?
Дата: 05-13-2025 Просмотры: 445
Скільки потрібно розеток в дитячу кімнату? Для дитячої кімнати важливо поєднати функціональність, безпеку і майбутній "запас" на підлітковий вік. Ось рекомендована кількість і місця для встановлення розеток: Рекомендована кількість розеток для ...
Скільки розеток потрібно на кухні?
Дата: 05-13-2025 Просмотры: 518
Кількість розеток на кухні залежить від кількості приладів, які будуть постійно або періодично підключатися. Ось рекомендований мінімум, який відповідає сучасним стандартам безпеки та комфорту. Рекомендована кількість розеток для кухні: Постійно ...
Україна переходить на 230 вольт замість 220В.
Дата: 05-11-2025 Просмотры: 1158
Україна переходить на 230 вольт замість 220В. Як позначиться стандарт напруги в мережі на електроприлади пояснення від ДЕТЕК . З 1 липня Україна офіційно переходить на новий стандарт напруги в електромережах – 230 В замість 220 В. Це частина ...
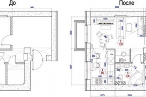
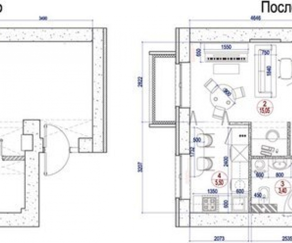
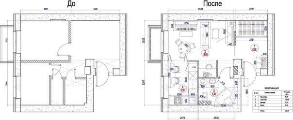
Як у маленькому помешканні розташувати меблі для підлітка?
Дата: 03-28-2025 Просмотры: 652
  Як у маленькому помешканні розташувати меблі для підлітка? звертайтесь 067 2755346 (киїська область) Організація меблів у маленькому приміщенні для підлітка Оформлення кімнати для підлітка в обмеженому просторі може бути викликом, але з ...

загружено 1  8 067 275-53-46

Телефонуйте або пишіть на Viber

Ми обов'язково Вам відповімо

Наша сторінка на  Facebook 

Наша стторінка на Instagram

Наша сторінка на new youtube logo 840x402 

 

залишайтеся на звязку Ми  Переможимо!